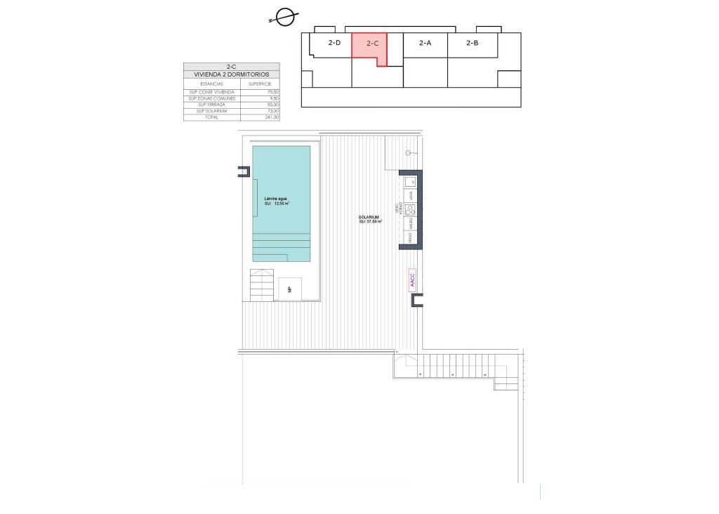
RESIDENCIAL DE OBRA NUEVA EN BENIJOFAR Residencial de obra nueva con piscina comunitaria en la azotea situado en el centro del encantador pueblo de Benijofar. Puede elegir entre modernos apartamentos con terrazas o áticos con solarium. Viviendas modernas de nueva construcción con cocina americana y salón, 2 y 3 dormitorios, 2 baños, terrazas. Una plaza de aparcamiento subterráneo opcional a un costo adicional. Benijofar es un pueblo encantador con una encantadora iglesia y una atractiva plaza situada en el interior de la Costa Blanca Sur, cerca de los centros turísticos de Guardamar del Segura y Torrevieja. Benijofar es también un lugar popular para alojarse durante las vacaciones de verano, ya que está lo suficientemente cerca de los centros turísticos costeros, pero lo suficientemente tranquilo como para ser capaz de alejarse de todo. Hay varios campos de golf cerca, así como parques acuáticos en las cercanas Rojales y Torrevieja. Las playas más cercanas y mejores de Benijofar están a unos quince minutos en coche y son algunas de las mejores playas de la Costa Blanca Sur, en Guardamar del Segura y Torrevieja. También hay servicios regulares de autobús desde Benijofar a Guardamar del Segura y Torrevieja con fácil acceso a las playas. A 20 minutos en coche del aeropuerto de Alicante con vuelos regulares a toda Europa.