Los Montesinos / Alicante / Costa Blanca Commercial / Venta

#REF: CC8-15573
106.000€
#REF: CC8-15573
106.000€

Los Montesinos / Alicante / Costa Blanca Commercial / Venta

Visión general

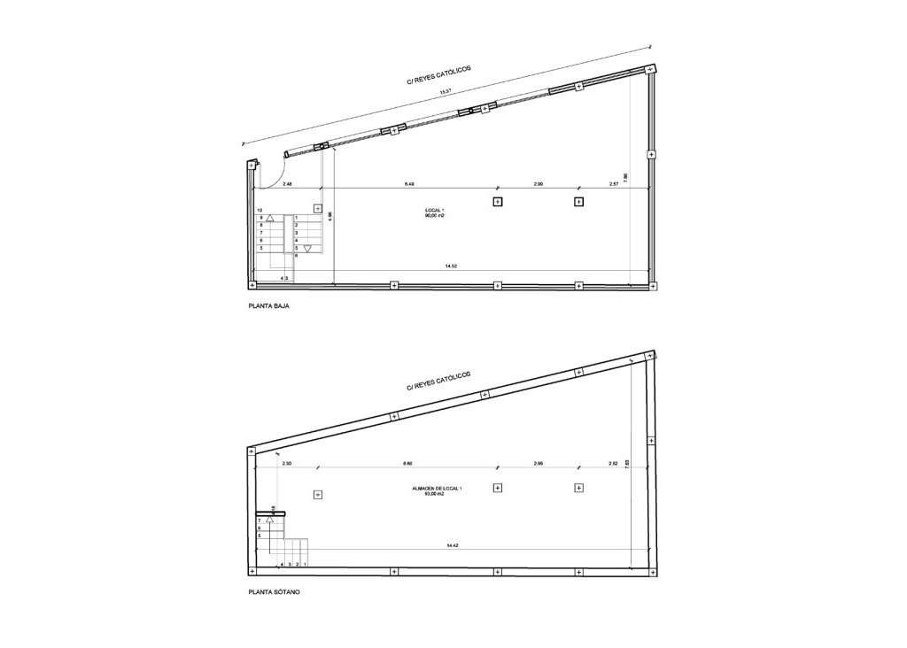
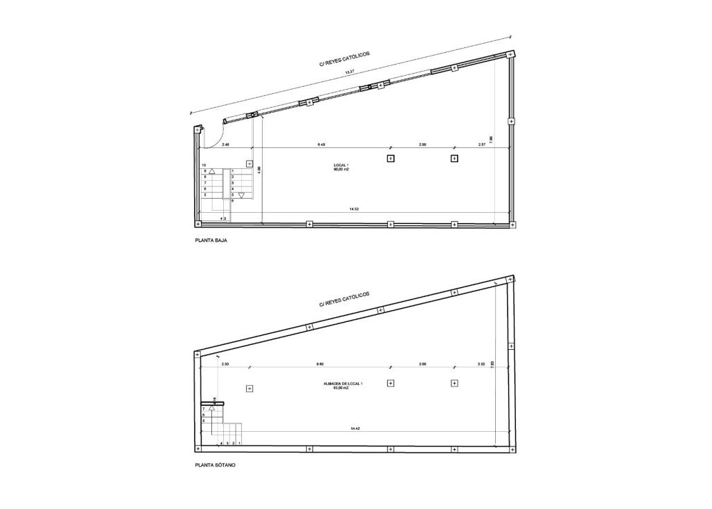
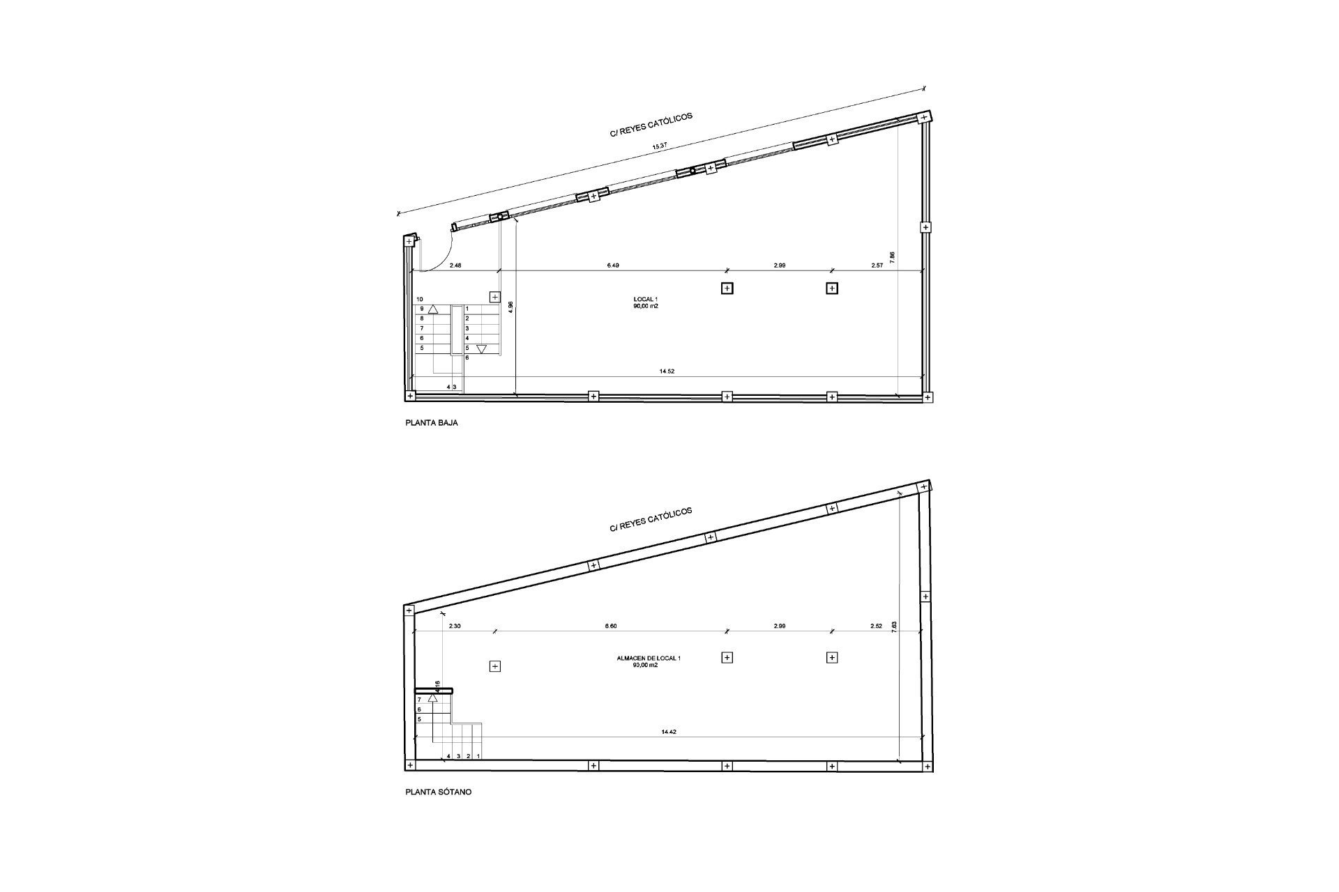
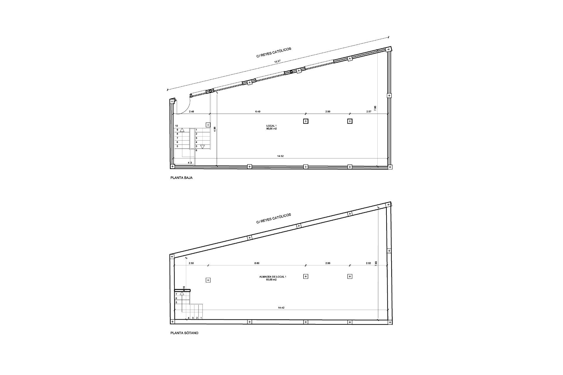
  • Metros 182m2
  • Calificación energética Calificación energética X
Construidos: 182m2
Sin amueblar
Trastero

Descripción

Mapa

Contacte con Nosotros

Responsable del tratamiento: CONNECT CONVEYANCING S.L., Finalidad del tratamiento: Gestión y control de los servicios ofrecidos a través de la página Web de Servicios inmobiliarios, Envío de información a traves de newsletter y otros, Legitimación: Por consentimiento, Destinatarios: No se cederan los datos, salvo para elaborar contabilidad, Derechos de las personas interesadas: Acceder, rectificar y suprimir los datos, solicitar la portabilidad de los mismos, oponerse altratamiento y solicitar la limitación de éste, Procedencia de los datos: El Propio interesado, Información Adicional: Puede consultarse la información adicional y detallada sobre protección de datos Aquí.
WhatsApp ¡Chatea con nosotros!