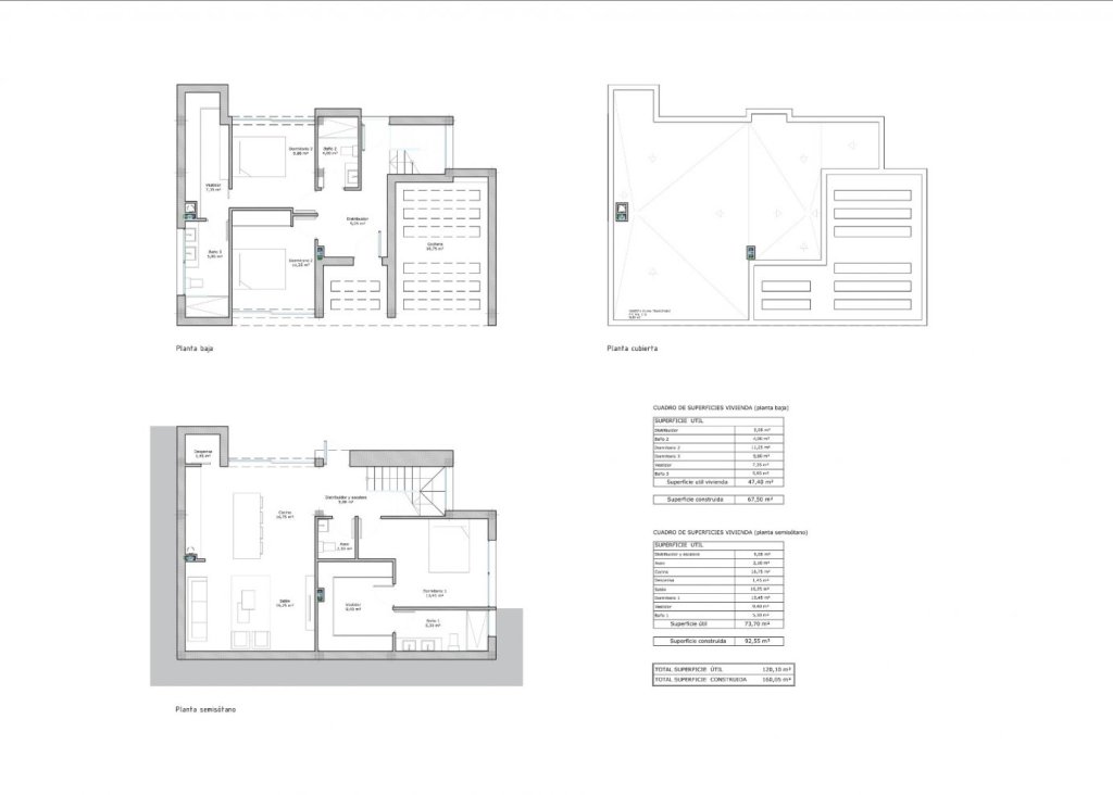
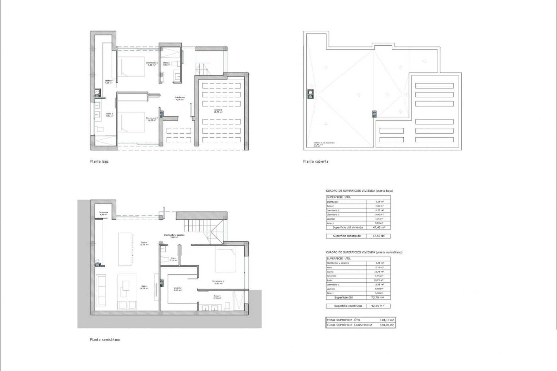
NIEUWBOUW VILLA'S IN FORTUNA Nieuwbouw villa's in Fortuna, Murcia. Onafhankelijke villa gebouwd over 2 verdiepingen en heeft 3 slaapkamers, 2 badkamers, 2 kleedkamers, open keuken met de woonkamer, garage, privé tuin met zwembad. De stad Fortuna ligt op minder dan 3 km afstand voor de dagelijkse boodschappen en de stad Murcia ligt op 25 km afstand waar er een breed scala aan gastronomische en recreatieve faciliteiten is. Het klimaat aan de Costa Cálida, vaak beschouwd als het beste van Europa, maakt een zeer gezellige en gezonde levensstijl mogelijk, in de buitenlucht, gekenmerkt door fantastische sport- en vrijetijdsvoorzieningen, met opwindende en kosmopolitische toeristische steden, die zich onderscheiden door het aanbieden van topklasse diensten, waarvan sommige exclusief, als echte luxe worden beschouwd. De Costa Cálida van Murcia heeft meer dan 300 dagen zon per jaar. Naast de golfbanen en jachthavens die u langs de hele kust kunt genieten, biedt het gebied ook de mogelijkheid om te skiën in de nabijgelegen Sierra Nevada, een paradijs voor wintersporters, met prachtige natuurlijke landschappen. De mogelijkheid om te genieten van allerlei culturele en recreatieve aanbiedingen van nabijgelegen hoofdsteden zoals Murcia en Cartagena. Een paradijs met uitstekende verbindingen naar heel Europa. De luchthavens Alicante-Elche en Murcias Corvera liggen op een uur afstand.