VILLAS DE OBRA NUEVA EN ALTAONA GOLF RESORT, MURCIA
Residencial de obra nueva de bonitas villas en Altaona Golf resort, Murcia.
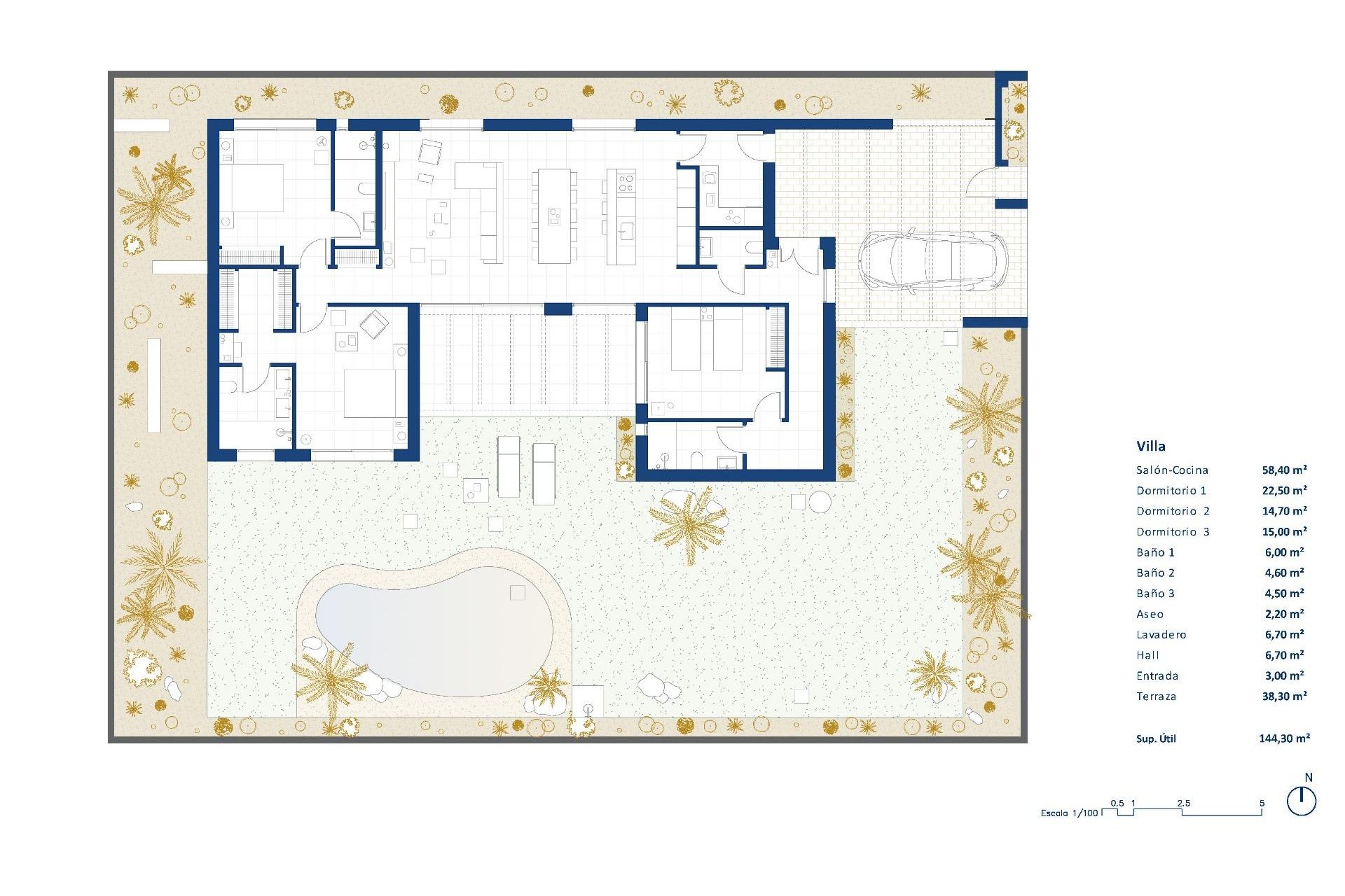
Villas de obra nueva con cocina americana, 3 dormitorios, 3 baños, aseo, terraza, jardín privado con piscina y plaza de garaje.
Características:
- Las viviendas tienen Certificado Energético Calificación A.
- Instalación de aire acondicionado por conductos con bomba de calor. En toda la vivienda excepto baños.
- Suelo radiante eléctrico en salón y baños con termostato individual por zona.
- Sistema de renovación de aire en cocina, baños, lavadero y aseo de invitados.
- Cocina Incluye campana extractora y placa de inducción eléctrica con 3 puntos de cocción.
- Incluye iluminación LED en salón, pasillo y exterior. El resto de estancias están preparadas para que el futuro propietario instale su iluminación.
- Tomas USB en todos los dormitorios.
- Portero electrónico para acceso desde el exterior al camino interior. Timbre en la entrada de la vivienda.
- Sistema domótico con dos interruptores inteligentes.
- Jardín privado ajardinado con sistema de riego por goteo y la piscina.
- Vallado exterior de la urbanización.
- Puertas de acceso de vehículos a la urbanización: Puerta corredera metálica con sistema de apertura a distancia
Residencial situado en Altaona Golf a tan solo 15 minutos en coche del centro de Murcia capital y a 20 minutos de las playas podrá disfrutar de la tranquilidad y seguridad que ofrece el Campo de Golf que cuenta con 18 hoyos y la comodidad de vivir cerca de todos los servicios.
El aeropuerto de Murcias Corvera a tan solo 15 minutos en coche.