VILLA DE LUJO DE OBRA NUEVA EN CUMBRE DEL SOL
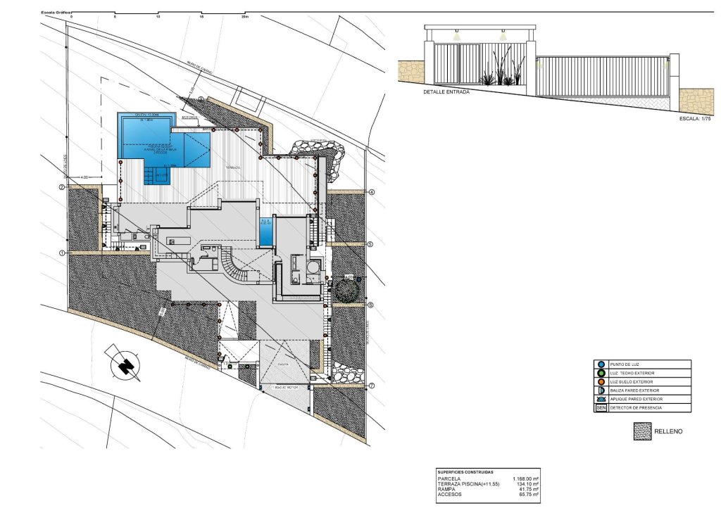
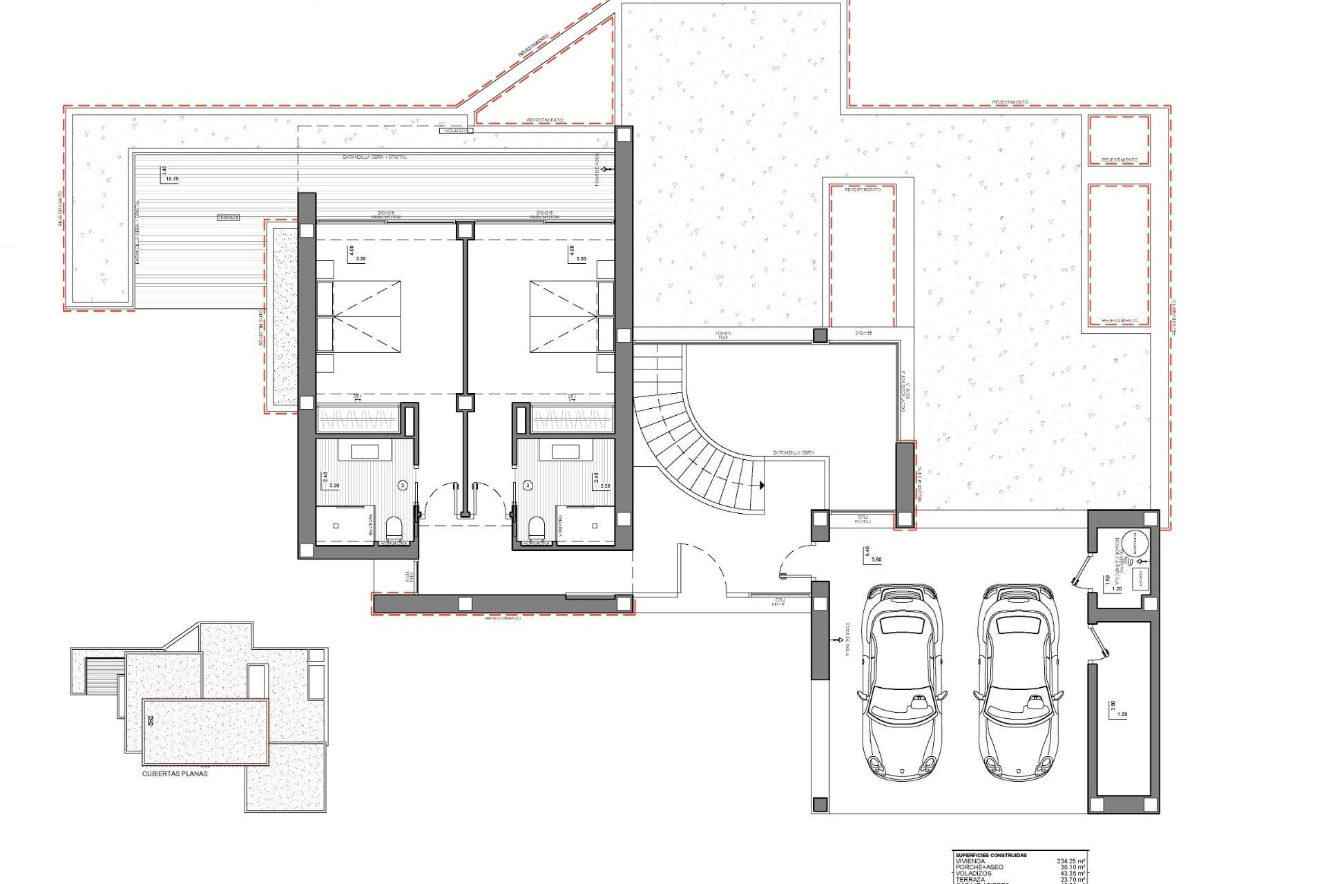
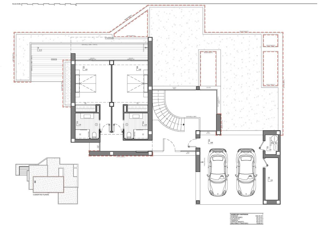
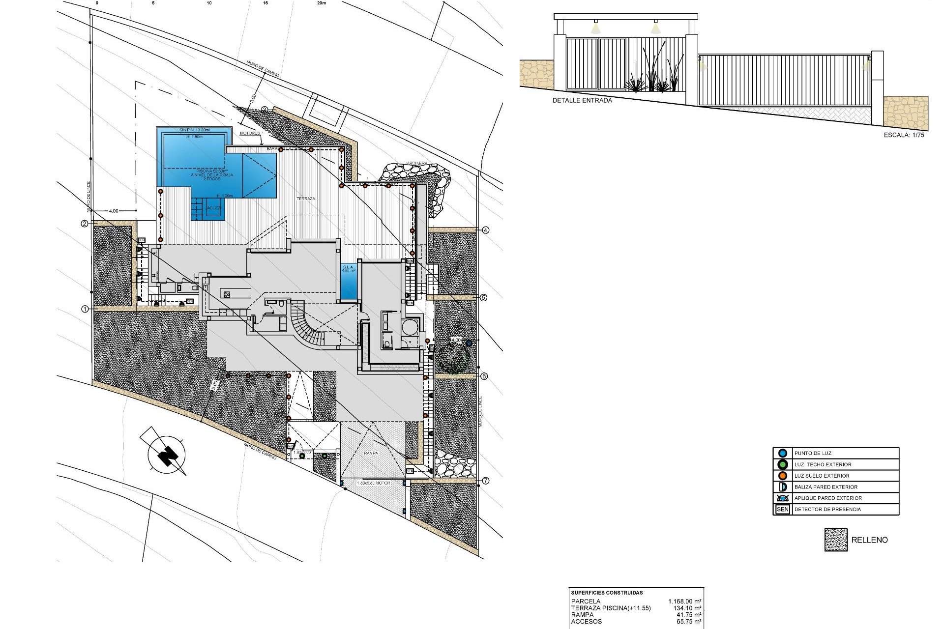
Villa emblemática de nueva construcción en Benitachell. Su diseño del siglo XXI se integra perfectamente en el exclusivo entorno de Residential Resort Cumbre del Sol. Está construida sobre una parcela de 1168m2, donde al estar orientada al suroeste se pueden ver y disfrutar de increíbles puestas de sol.
Todo en esta villa grita calidad y estilo, con un diseño inteligente que ofrece una práctica distribución de la villa que optimiza, aún más, sus excepcionales vistas al Mediterráneo.
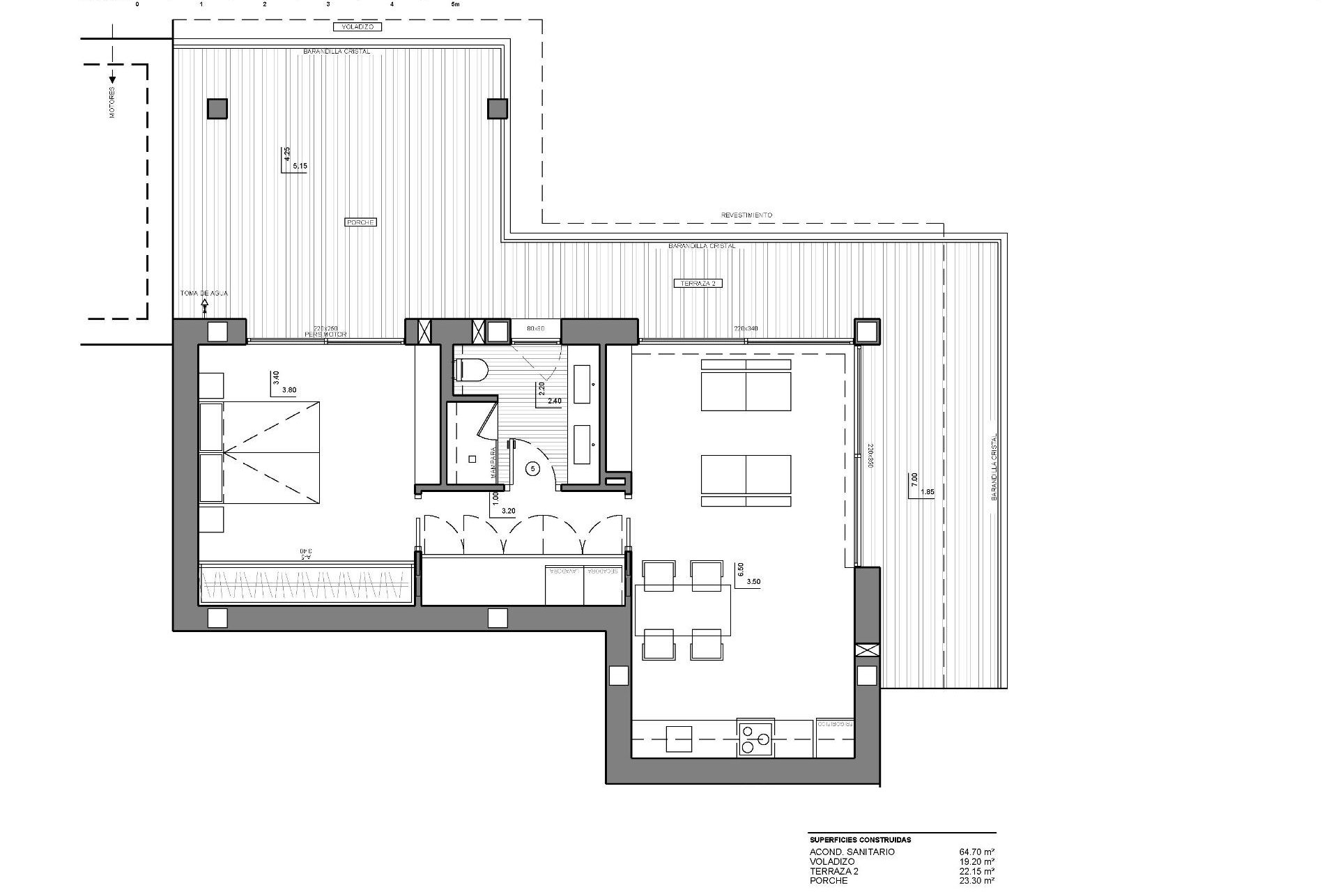
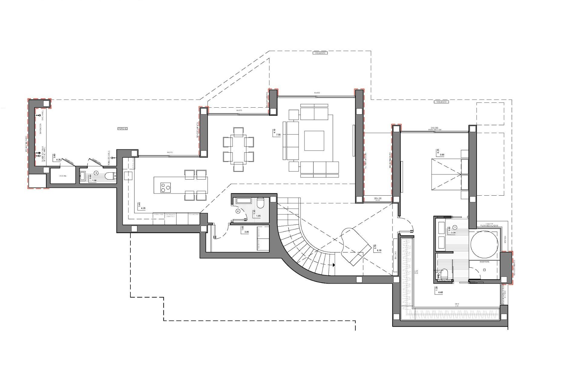
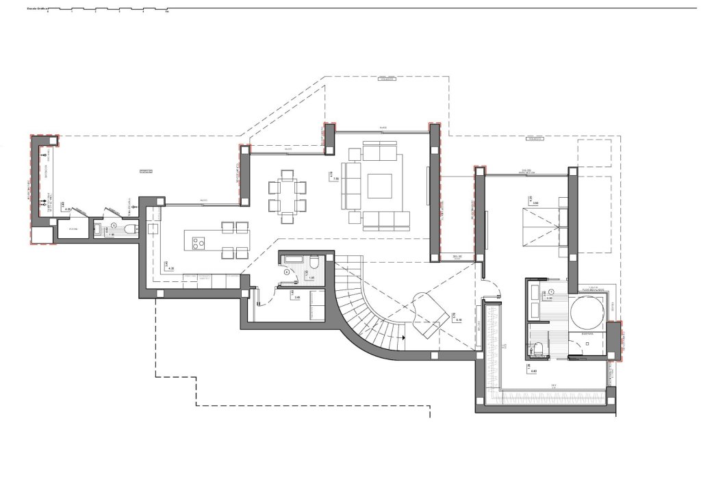
Una vivienda con muchos espacios para disfrutar del descanso y la vida familiar frente al mar. Dispone de varias estancias conectadas entre sí para poder vivir diferentes momentos del día en distintos ambientes. Un comedor y una sala de estar, una cocina con una isla central donde poder disfrutar de un desayuno perfecto, y un gran porche de verano con barbacoa. Todas estas estancias están dispuestas para que puedas disfrutar de una buena conversación, celebrar eventos familiares importantes o para que simplemente te relajes contemplando el mar.
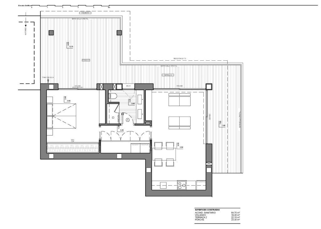
El dormitorio principal ha sido diseñado pensando en la comodidad y el relax. Es un espacio privado con un gran cuarto de baño en suite con bañera y ducha frente al mar. También dispone de un gran vestidor y acceso a una terraza privada.
Cumbre del Sol se encuentra en Benitachell en el corazón de la montaña de la Llorenca, al norte de la Costa Blanca. Se encuentra entre las dos ciudades costeras de Javea y Moraira y está rodeado de zonas protegidas excepcionales como el Parque Natural de La Granadella. Está muy cerca de maravillosas playas y calas y de ciudades como Denia, Calpe y Altea.
Tanto si disfruta de un par de días, unas vacaciones, una temporada o el año completo en nuestro resort de lujo en Benitachell, comprobará que Cumbre del Sol cumple todas sus expectativas.
Golfistas, buceadores, amantes de la naturaleza y buscadores de sol están a pocos minutos de las decenas de destinos paradisíacos de la Costa Blanca que rodean nuestra urbanización.