Orihuela / Alicante / Costa Blanca Chalet / Obra Nueva

#REF: NB2-75639
429.000€
#REF: NB2-75639
429.000€

Orihuela / Alicante / Costa Blanca Chalet / Obra Nueva

Visión general

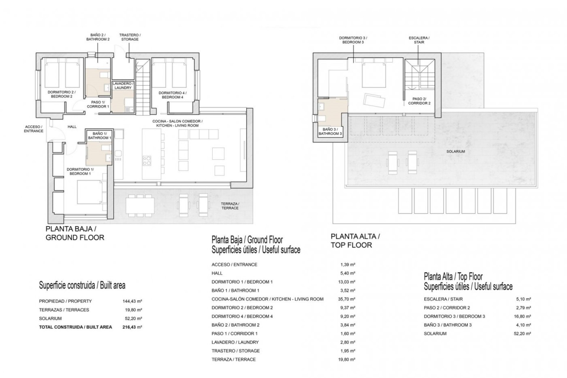
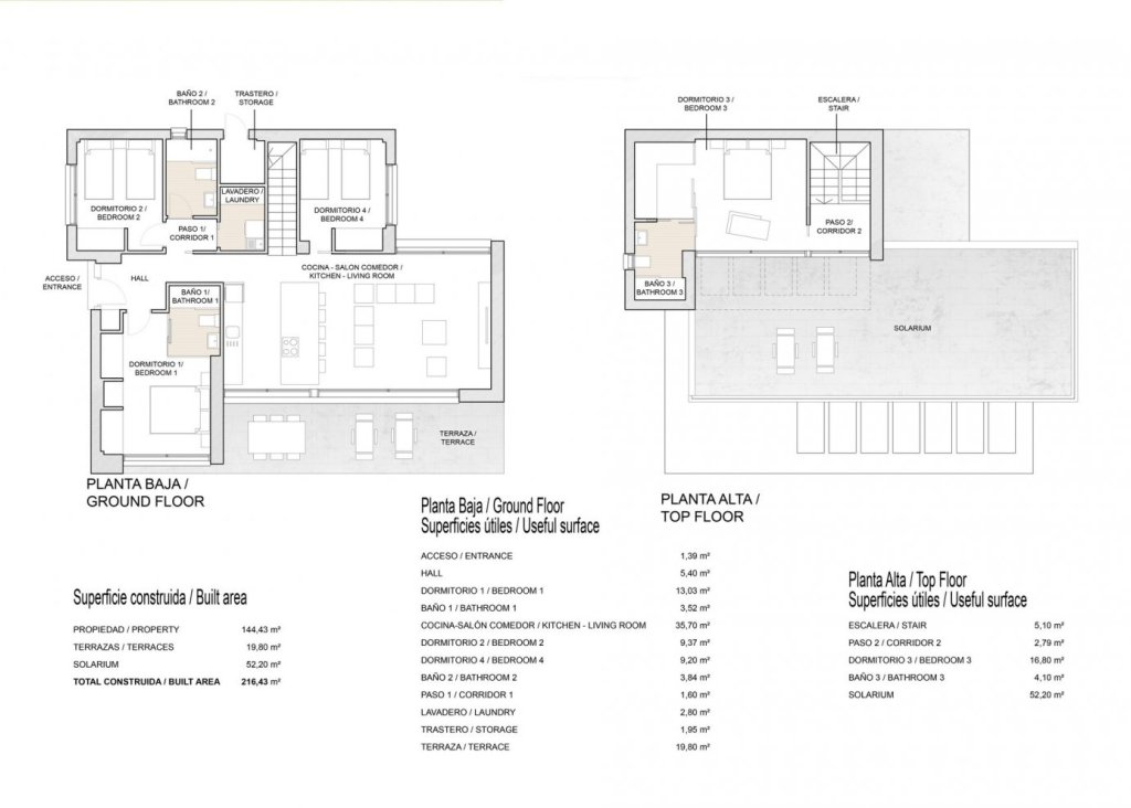
  • Metros 144m2
  • Parcela 304m2
  • Habitaciones 4
  • Calificación energética Calificación energética B
Habitaciones: 4
Baños: 3
Construidos: 144m2
Parcela: 304m2
Solarium: Yes
Gated
Number of Parking Spaces: 1
Near Schools
Near Commercial Center
Air Conditioning: Pre-Installed
Near Golf / Golf Resort Property
Location: Urbanisation
Double Bedrooms: 4
Parking - Space
Beach: 14000 Meters
Useable Build Space: 125 Msq.
Terrace: 71 Msq.

Descripción

Mapa

Contacte con Nosotros

Responsable del tratamiento: CONNECT CONVEYANCING S.L., Finalidad del tratamiento: Gestión y control de los servicios ofrecidos a través de la página Web de Servicios inmobiliarios, Envío de información a traves de newsletter y otros, Legitimación: Por consentimiento, Destinatarios: No se cederan los datos, salvo para elaborar contabilidad, Derechos de las personas interesadas: Acceder, rectificar y suprimir los datos, solicitar la portabilidad de los mismos, oponerse altratamiento y solicitar la limitación de éste, Procedencia de los datos: El Propio interesado, Información Adicional: Puede consultarse la información adicional y detallada sobre protección de datos Aquí.

Propiedades seleccionadas Propiedades similares

WhatsApp ¡Chatea con nosotros!