Exclusiva vida mediterránea en Lo Marabú, Ciudad Quesada
Ubicación privilegiada con naturaleza y comodidad
Descubra el encanto de vivir en Lo Marabú, Ciudad Quesada, una exclusiva zona residencial que combina el confort moderno con la belleza de la naturaleza mediterránea. Enclavada en una ubicación privilegiada, esta urbanización ofrece fácil acceso a los servicios esenciales a la vez que proporciona un entorno sereno y tranquilo. A poca distancia en coche, encontrará las impresionantes lagunas saladas de La Mata y Torrevieja, un paraíso para los entusiastas de la naturaleza, los fotógrafos y los que buscan bienestar.
Hermosas playas y actividades al aire libre
A sólo 15 minutos en coche, las playas vírgenes de Guardamar del Segura y Torrevieja invitan a disfrutar de dunas doradas y aguas cristalinas. Estas joyas costeras ofrecen oportunidades para relajarse, practicar deportes acuáticos y dar pintorescos paseos por la orilla. Para los entusiastas del aire libre, la zona cuenta con numerosas rutas de senderismo y ciclismo, mientras que los amantes del golf apreciarán la proximidad a varios campos de golf de prestigio, proporcionando una experiencia deportiva de primera clase.
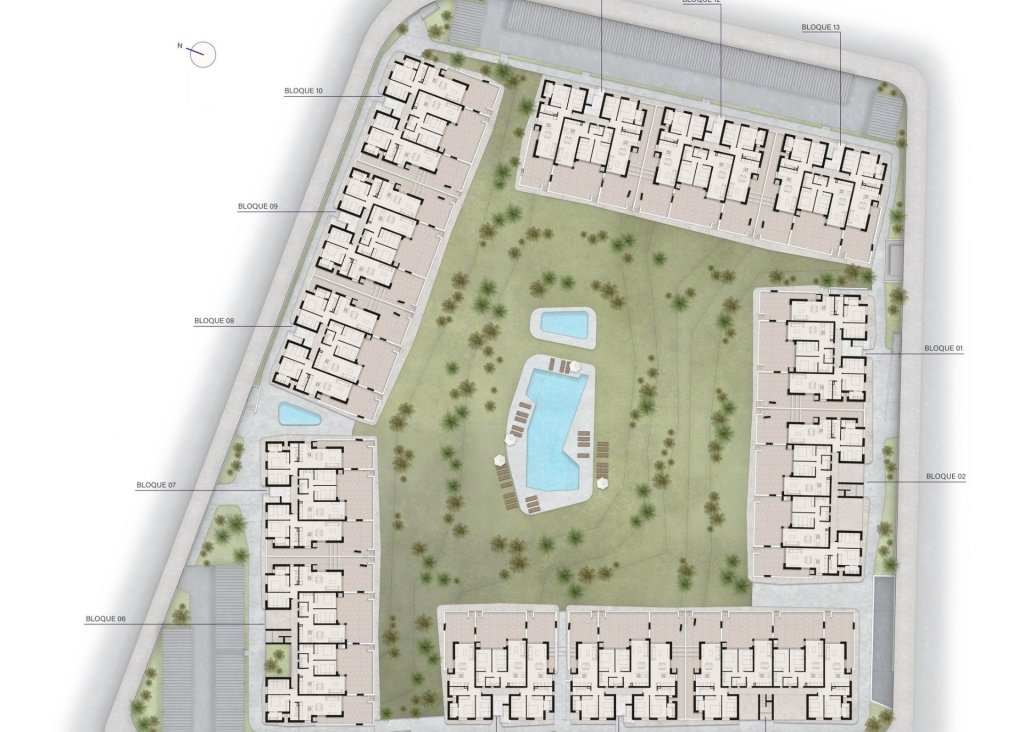
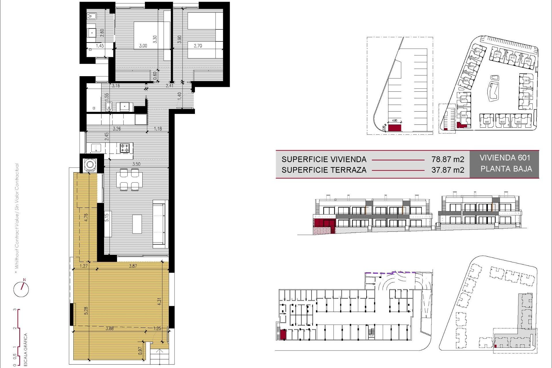
Viviendas y servicios de alta calidad
Este complejo residencial cuenta con viviendas cuidadosamente diseñadas, entre las que se incluyen:
Bungalows: Unidades de planta baja con jardín privado u opciones de planta alta con solárium. Todos los bungalows incluyen dos dormitorios, dos baños, una plaza de aparcamiento y un trastero, alrededor de una zona comunitaria central con piscina y jardines paisajísticos.
Chalets: Viviendas independientes de tres dormitorios y tres baños, disponibles en una o dos plantas. Cada villa incluye piscina privada, solarium y aparcamiento dentro de la parcela. También hay sótanos opcionales.
Confort moderno y características excepcionales
Todas las viviendas están construidas con materiales y acabados de primera calidad:
Ventanas de PVC con doble acristalamiento y persianas motorizadas con mando a distancia.
Suelo radiante eléctrico en baños.
Instalación de aire acondicionado por conductos.
Chalets con piscinas privadas (3,00 x 6,00 m) y duchas de acero inoxidable.
Piscinas comunitarias con zona infantil para los residentes de los bungalows.
Como oferta especial de lanzamiento, algunas viviendas incluyen electrodomésticos y un paquete de muebles.
Excelente conectividad y puntos de interés locales
Estratégicamente situada en Rojales, Alicante, esta promoción ofrece excelentes infraestructuras y conectividad:
Aeropuerto de Alicante-Elche (ALC): 38 km (35 minutos en coche).
Aeropuerto Murcia-Corvera (RMU): 65 km (50 minutos en coche).
La proximidad a las principales carreteras, como la AP-7 y la N-332, garantiza un fácil acceso a las ciudades y lugares de interés cercanos.
Los centros comerciales locales, restaurantes y servicios diarios están a poca distancia.
Disfrute de la vida mediterránea
Con su mezcla perfecta de vida moderna, belleza natural y comodidad sin igual, este complejo residencial en Lo Marabú es la opción ideal para aquellos que buscan un estilo de vida de alta calidad. No pierda la oportunidad de invertir en la casa de sus sueños en el corazón del Mediterráneo.
Póngase en contacto con nosotros hoy mismo para concertar una visita o para obtener más información sobre esta excepcional promoción.
.
Esta información que se proporciona aquí está sujeta a errores y no forma parte de ningún contrato. La oferta se puede cambiar o retirar sin previo aviso. Los precios no incluyen los costes de compra
© 2026 Casas Connect · Nota legal · Privacidad · Cookies · Mapa Web · Diseño & CRM: Mediaelx
En primer lugar, gracias por contactarnos.
En primer lugar, gracias por contactarnos.
Hemos recibido una solicitud de informe si baja el precio de la propiedad con la referencia: NB1-17656
Mientras tanto, eche un vistazo a esta selección de propiedades similares que podrían ser de su interés: