Aspe / Alicante / Costa Blanca Chalet / Obra Nueva

#REF: NB1-22939
586.000€
#REF: NB1-22939
586.000€

Aspe / Alicante / Costa Blanca Chalet / Obra Nueva

Visión general

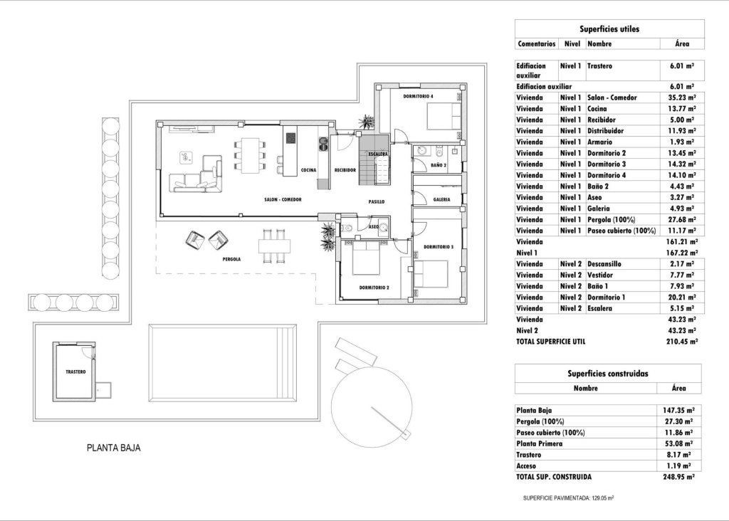
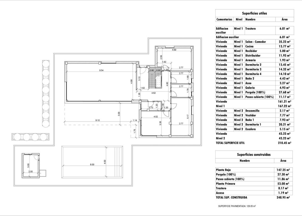
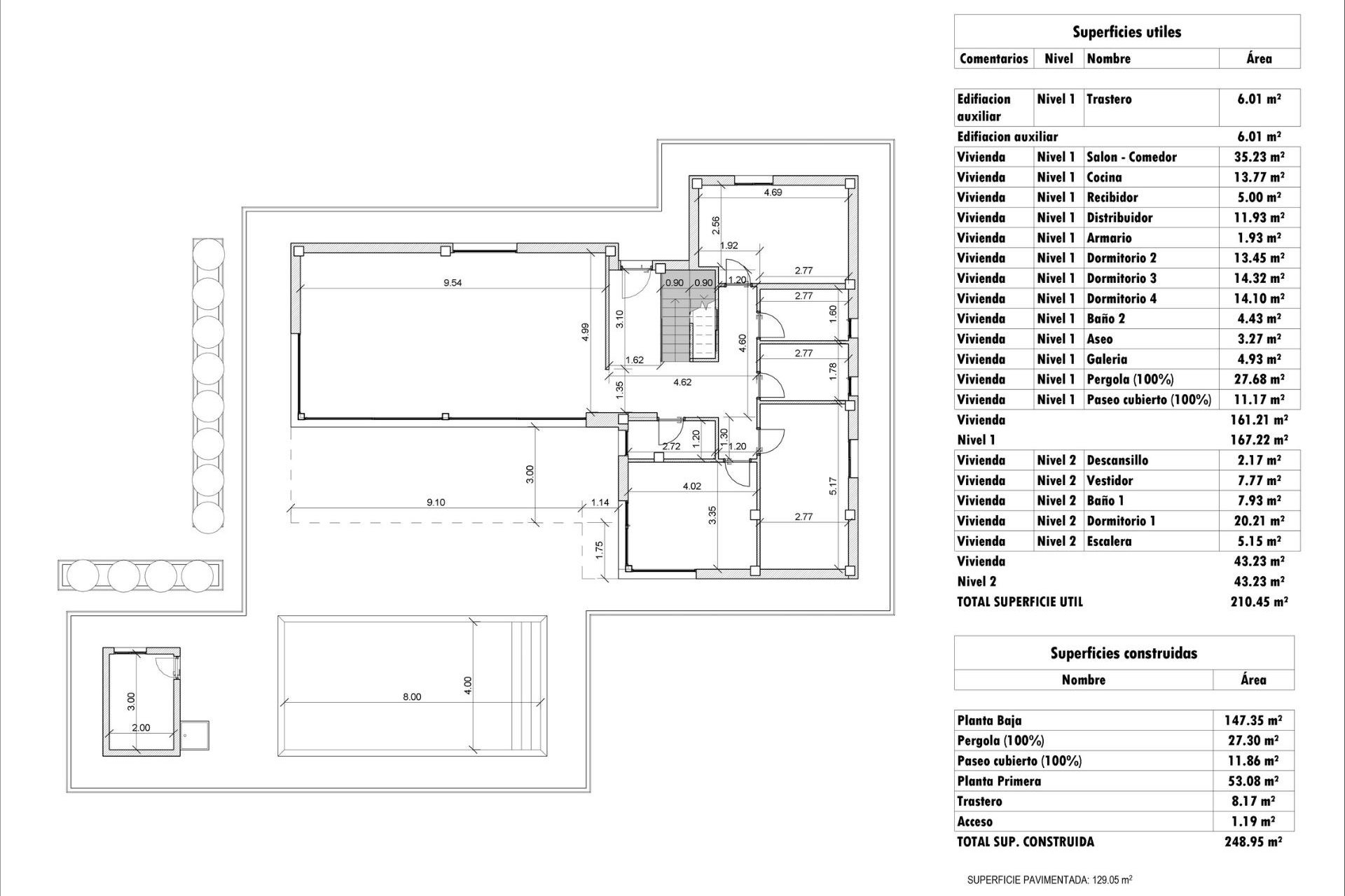
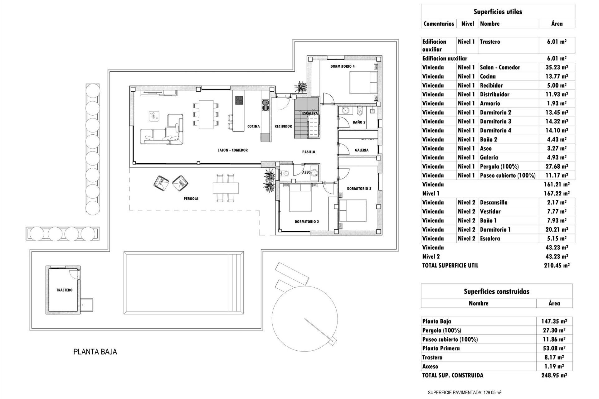
  • Metros 248m2
  • Parcela 13.172m2
  • Habitaciones 4
  • Piscina Privada
  • Calificación energética Calificación energética B
Habitaciones: 4
Baños: 3
Construidos: 248m2
Parcela: 13.172m2
Piscina: Privada
Jardín
Piscina privada
Gated
Number of Parking Spaces: 1
Near Schools
Air Conditioning: Pre-Installed
Double Bedrooms: 4
Parking - Space
Beach: 25000 Meters
Terrace: 38 Msq.
Location: Mountain
Useable Build Space: 210 Msq.
Storage / Trastero

Descripción

Mapa

Contacte con Nosotros

Responsable del tratamiento: CONNECT CONVEYANCING S.L., Finalidad del tratamiento: Gestión y control de los servicios ofrecidos a través de la página Web de Servicios inmobiliarios, Envío de información a traves de newsletter y otros, Legitimación: Por consentimiento, Destinatarios: No se cederan los datos, salvo para elaborar contabilidad, Derechos de las personas interesadas: Acceder, rectificar y suprimir los datos, solicitar la portabilidad de los mismos, oponerse altratamiento y solicitar la limitación de éste, Procedencia de los datos: El Propio interesado, Información Adicional: Puede consultarse la información adicional y detallada sobre protección de datos Aquí.

Propiedades seleccionadas Propiedades similares

WhatsApp ¡Chatea con nosotros!