Modernas villas de nueva construcción en La Herrada Los Montesinos con piscina privada
Exclusivo proyecto residencial en un entorno tranquilo
Situada en la prestigiosa urbanización La Herrada, en Los Montesinos, esta exclusiva promoción de 16 modernas villas ofrece privacidad, comodidad y una excelente calidad de vida. La Herrada es conocida por su tranquilo ambiente residencial, su proximidad a los servicios cotidianos y su privilegiada ubicación entre las famosas salinas de Torrevieja y La Mata. Es un lugar ideal para aquellos que buscan un estilo de vida mediterráneo relajado y saludable en el sur de la Costa Blanca.
Diseño contemporáneo con espacios interiores optimizados
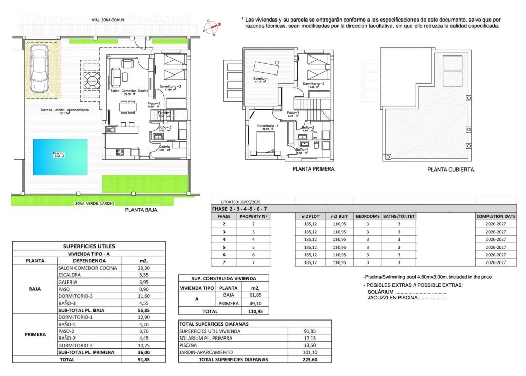
Cada villa tiene 110 m² de superficie habitable bien distribuida en dos plantas, diseñadas para maximizar la luz natural y la funcionalidad. Construidas en parcelas a partir de 185 m², las propiedades ofrecen amplias zonas exteriores perfectas para tomar el sol, divertirse o relajarse junto a la piscina privada.
Cómoda distribución en dos plantas
La planta baja cuenta con un salón diáfano con cocina totalmente integrada y acceso directo al jardín y a la zona de la piscina. Esta planta también incluye un dormitorio, un cuarto de baño completo y un práctico lavadero.
En la planta superior hay dos amplios dormitorios, cada uno con su propio cuarto de baño, uno de ellos en suite. Ambos dormitorios tienen acceso a una terraza privada abierta de 17 m². Para aquellos que deseen aún más espacio exterior, hay un solárium opcional en la azotea disponible con un coste adicional.
Acabados de alta calidad y características modernas
Las villas incluyen acabados de calidad, como muebles de baño, espejos, mamparas de ducha y calefacción por suelo radiante en todos los cuartos de baño. Hay preinstalación para aire acondicionado por conductos, puerta de entrada motorizada para vehículos, aparcamiento privado en la parcela y acceso residencial cerrado a través de una calle interna privada.
Ubicación privilegiada cerca de los principales servicios y atracciones
Playas de Guardamar y Torrevieja a 9 km
La Marquesa Golf, La Finca Golf y Vistabella Golf a menos de 5 km
Aeropuerto de Alicante a 29 km
Parques naturales, salinas, rutas ciclistas y senderos para hacer senderismo en las inmediaciones
Viva cómodamente en el corazón de la Costa Blanca
Estas villas de nueva construcción en Los Montesinos ofrecen la combinación perfecta de comodidad moderna, entorno natural y excelente accesibilidad. Tanto si busca una residencia permanente como una casa de vacaciones, esta promoción le ofrece todo lo que necesita para disfrutar de un estilo de vida mediterráneo tranquilo y cómodo. Póngase en contacto con nosotros hoy mismo para concertar una visita y asegurarse su nueva vivienda en La Herrada.