Apartamentos residenciales de nueva construcción en Los Balcones, Torrevieja
Viviendas modernas en una zona residencial privilegiada
Descubra este atractivo complejo residencial de nueva construcción situado en Los Balcones, uno de los barrios más populares y consolidados de las afueras de Torrevieja. Ubicado en un entorno tranquilo con excelente acceso a todos los servicios esenciales, este complejo se encuentra a solo 4 km de las playas de arena de la Costa Blanca. Los Balcones es conocido por su ambiente relajado, sus amplias calles, sus zonas verdes y su proximidad a hospitales, supermercados, restaurantes y centros comerciales, lo que lo hace ideal para vivir todo el año o para pasar las vacaciones.
Apartamentos contemporáneos con espacios exteriores privados
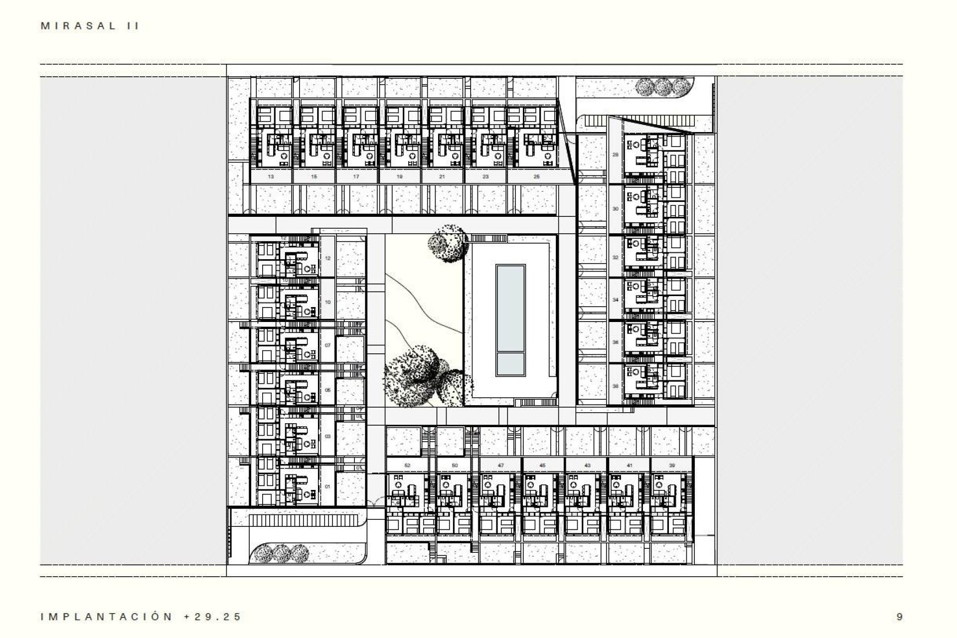
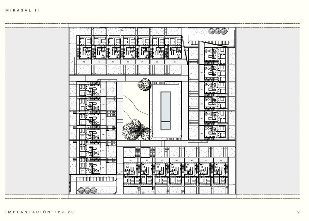
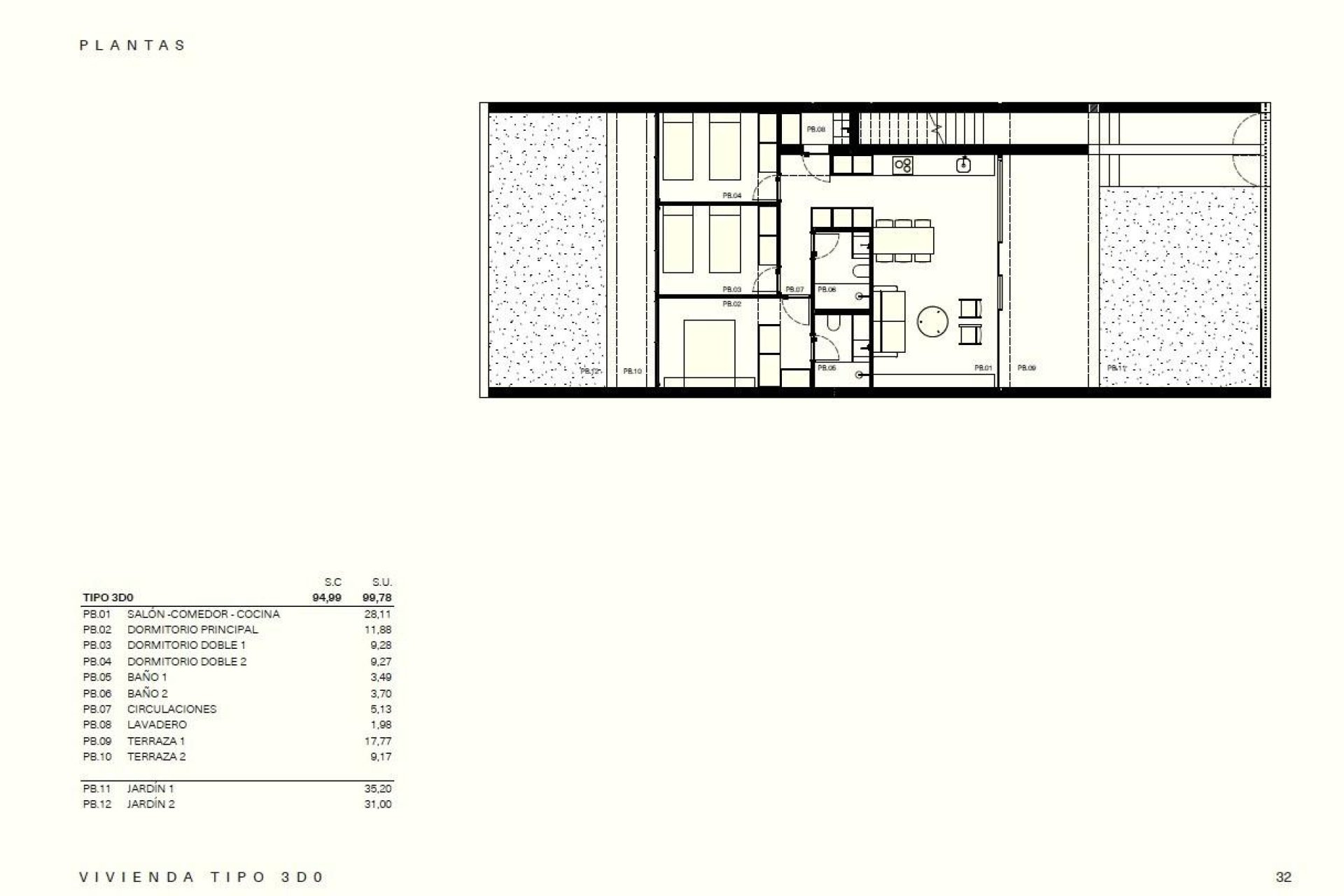
El complejo consta de 52 apartamentos modernos construidos en una superficie total de 6700 m2. Cada propiedad incluye una plaza de aparcamiento privada y un trastero en el sótano. Las viviendas ofrecen 2 o 3 dormitorios y 2 baños, uno de ellos en suite.
Los compradores pueden elegir entre apartamentos en planta baja con jardín privado o viviendas en plantas superiores con una amplia terraza y solárium privado. Estas distribuciones están diseñadas para maximizar la luz natural y proporcionar cómodos espacios interiores y exteriores para disfrutar del clima mediterráneo durante todo el año.
Zonas comunes diseñadas para el relax
El proyecto se distribuye en cuatro bloques que rodean una gran zona común central. Este corazón verde de la urbanización cuenta con una piscina con zona infantil y unos jardines con un bonito diseño paisajístico. Estos espacios compartidos son perfectos para relajarse, socializar y pasar tiempo en familia en un entorno seguro y agradable.
Características de calidad y diseño energéticamente eficiente
Cada apartamento está construido según los estándares modernos e incluye la preinstalación de aire acondicionado por conductos, un sistema de agua caliente aerotérmica para mejorar la eficiencia energética, iluminación exterior y carpintería exterior con doble acristalamiento. Las cocinas están completamente equipadas, ofreciendo un espacio funcional y elegante para la vida diaria.
Estas características garantizan un alto nivel de confort, un bajo mantenimiento y un consumo energético reducido, lo que hace que las viviendas sean prácticas y sostenibles.
Excelente ubicación cerca de playas y campos de golf
Los Balcones ofrece una ubicación estratégica cerca de muchos puntos de interés. Las playas de Torrevieja están a unos 4 km. Varios campos de golf de renombre, como Villamartin Golf, Las Ramblas Golf y Campoamor Golf, se encuentran a entre 10 y 15 km. El Hospital Universitario de Torrevieja está a menos de 2 km, lo que añade comodidad y tranquilidad.
El centro de Torrevieja está a unos 5 km, conectado por autobús con Los Balcones, donde encontrará una amplia gama de tiendas, restaurantes, locales culturales y un animado puerto deportivo. El aeropuerto internacional de Alicante se encuentra a unos 42 km, lo que facilita las conexiones internacionales. El puerto de Torrevieja está a unos 6 km.
Ideal para vivir o invertir
Con su diseño moderno, sus excelentes zonas comunes y su ubicación privilegiada cerca de playas, campos de golf y servicios, este nuevo complejo residencial en Los Balcones Torrevieja es perfecto como residencia permanente, casa de vacaciones o oportunidad de inversión.
Póngase en contacto con nosotros hoy mismo para obtener más información o concertar una visita a estos apartamentos de nueva construcción en Los Balcones, Torrevieja.