Torrevieja / Alicante / Costa Blanca Bungalow / Nieuwbouw

#REF: NB1-74145
340.000€
#REF: NB1-74145
340.000€

Torrevieja / Alicante / Costa Blanca Bungalow / Nieuwbouw

Overzicht

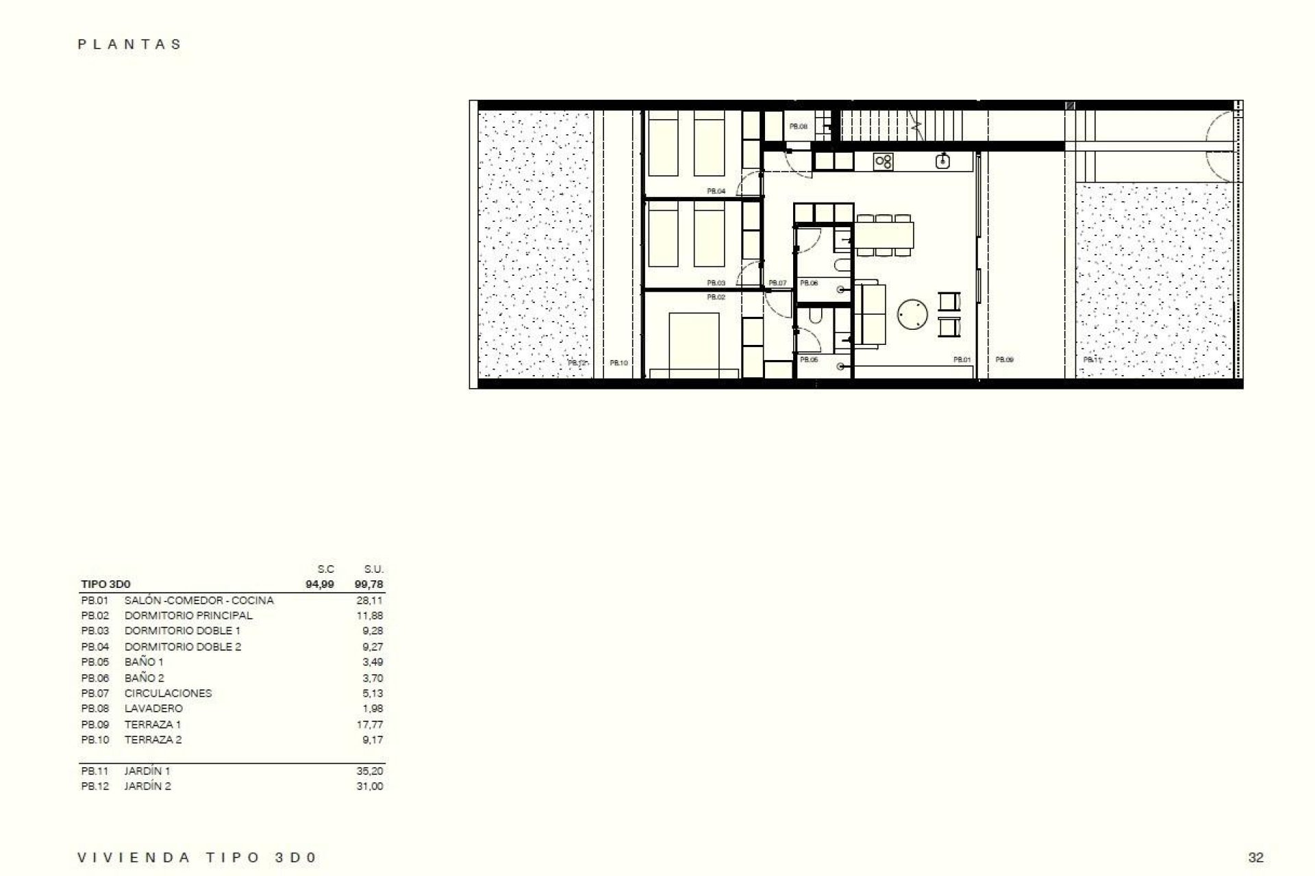
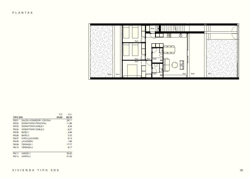
  • Meters 99m2
  • Perceel 76m2
  • Slaapkamers 3
  • Zwembad Privaat
  • Energielabel Energielabel B
Slaapkamers: 3
Badkamers: 2
Woonoppervlakte: 99m2
Perceel: 76m2
Zwembad: Privaat
Parking - Space
Beach: 3500 Meters
Useable Build Space: 94 Msq.
Storage / Trastero
Tuin
Communal Pool
Gated
Number of Parking Spaces: 1
Near Schools
Near Commercial Center
Location: Coastal, Urbanisation
Air Conditioning: Pre-Installed
Near Golf / Golf Resort Property
Double Bedrooms: 3
Terrace: 27 Msq.

Beschrijving

Kaart

Neem contact met ons op

Verwerkingsverantwoordelijke: CONNECT CONVEYANCING S.L., Doel van de verwerking: Beheer en controle van de diensten die worden aangeboden via de Vastgoeddiensten-website, Verzenden van informatie via nieuwsbrief en andere, Rechtsgrond: Met toestemming, Ontvangers: Gegevens worden niet gedeeld, behalve voor boekhoudkundige doeleinden, Rechten van betrokkenen: Toegang, rectificatie en verwijdering van gegevens, verzoek om overdraagbaarheid, bezwaar tegen verwerking en verzoek om beperking daarvan, Herkomst van gegevens: De Betrokkene, Aanvullende informatie: U kunt aanvullende en gedetailleerde informatie over gegevensbescherming Hier raadplegen.

Met zorg geselecteerde woningen Vergelijkbare woningen

www.currencies.co.uk – Great rates of foreign exchange
WhatsApp Chat met ons!