Aspe / Alicante / Costa Blanca Villa / Nieuwbouw

#REF: NB1-22939
586.000€
#REF: NB1-22939
586.000€

Aspe / Alicante / Costa Blanca Villa / Nieuwbouw

Overzicht

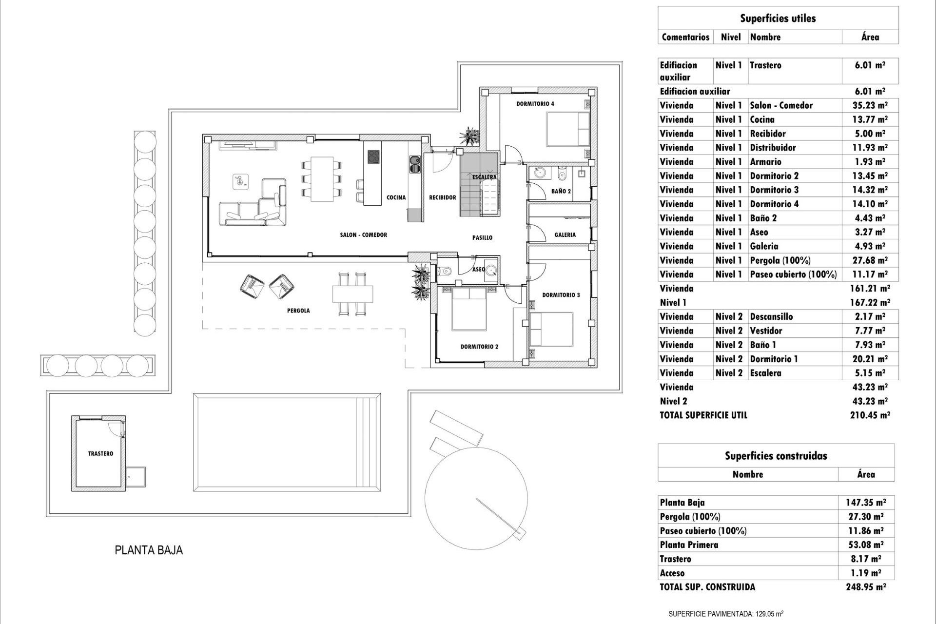
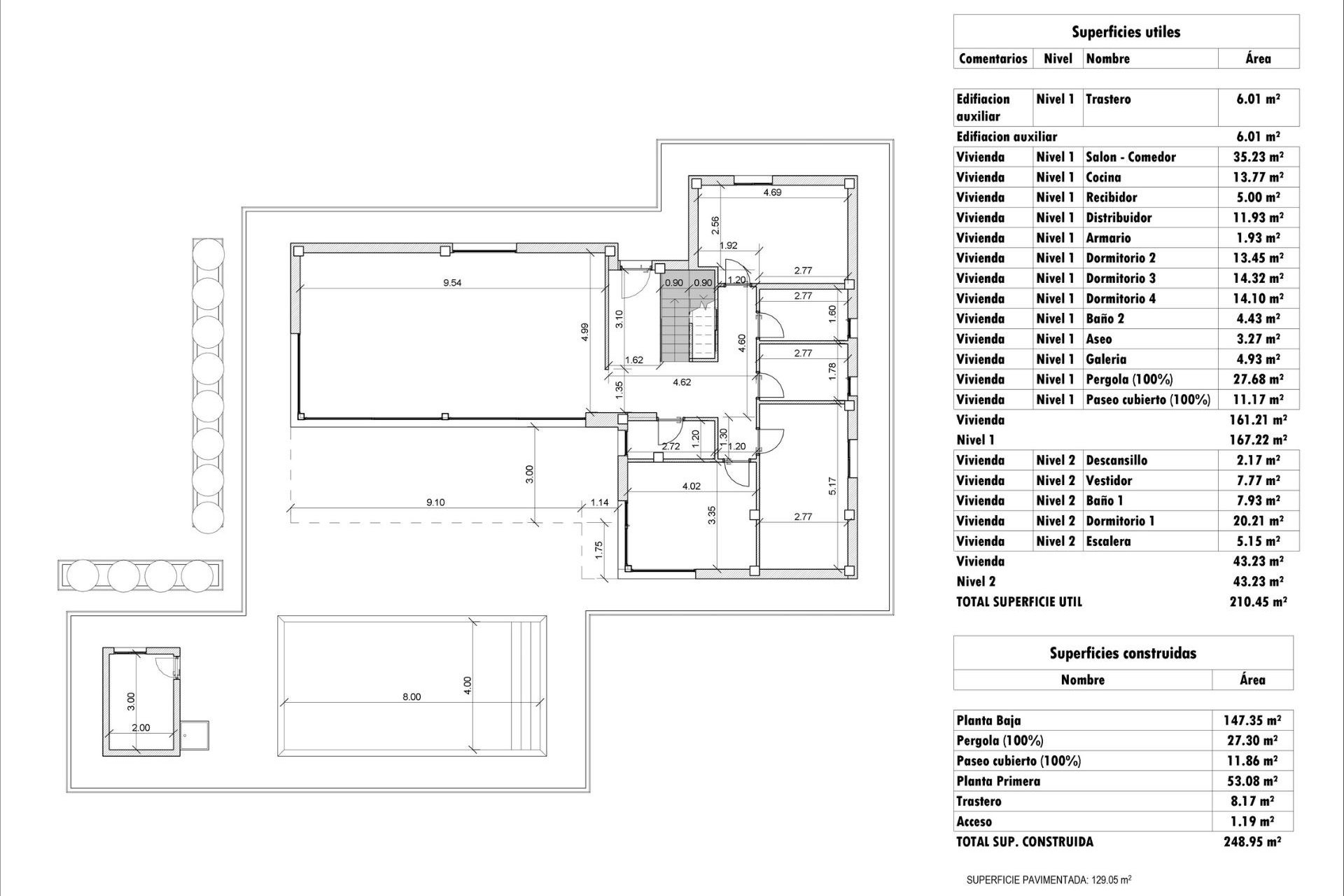
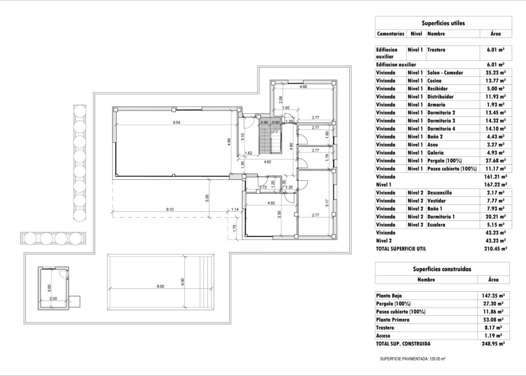
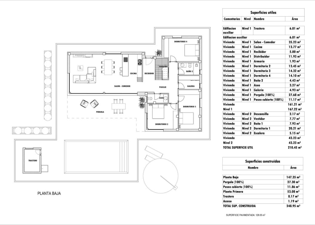
  • Meters 248m2
  • Perceel 13.172m2
  • Slaapkamers 4
  • Zwembad Privaat
  • Energielabel Energielabel B
Slaapkamers: 4
Badkamers: 3
Woonoppervlakte: 248m2
Perceel: 13.172m2
Zwembad: Privaat
Parking - Space
Beach: 25000 Meters
Terrace: 38 Msq.
Location: Mountain
Useable Build Space: 210 Msq.
Storage / Trastero
Tuin
Prive zwembad
Gated
Number of Parking Spaces: 1
Near Schools
Air Conditioning: Pre-Installed
Double Bedrooms: 4

Beschrijving

Kaart

Neem contact met ons op

Verwerkingsverantwoordelijke: CONNECT CONVEYANCING S.L., Doel van de verwerking: Beheer en controle van de diensten die worden aangeboden via de Vastgoeddiensten-website, Verzenden van informatie via nieuwsbrief en andere, Rechtsgrond: Met toestemming, Ontvangers: Gegevens worden niet gedeeld, behalve voor boekhoudkundige doeleinden, Rechten van betrokkenen: Toegang, rectificatie en verwijdering van gegevens, verzoek om overdraagbaarheid, bezwaar tegen verwerking en verzoek om beperking daarvan, Herkomst van gegevens: De Betrokkene, Aanvullende informatie: U kunt aanvullende en gedetailleerde informatie over gegevensbescherming Hier raadplegen.

Met zorg geselecteerde woningen Vergelijkbare woningen

WhatsApp Chat met ons!