Torrevieja / Alicante / Costa Blanca Bungalow / New Build

#REF: NB1-74145
340.000€
#REF: NB1-74145
340.000€

Torrevieja / Alicante / Costa Blanca Bungalow / New Build

Overview

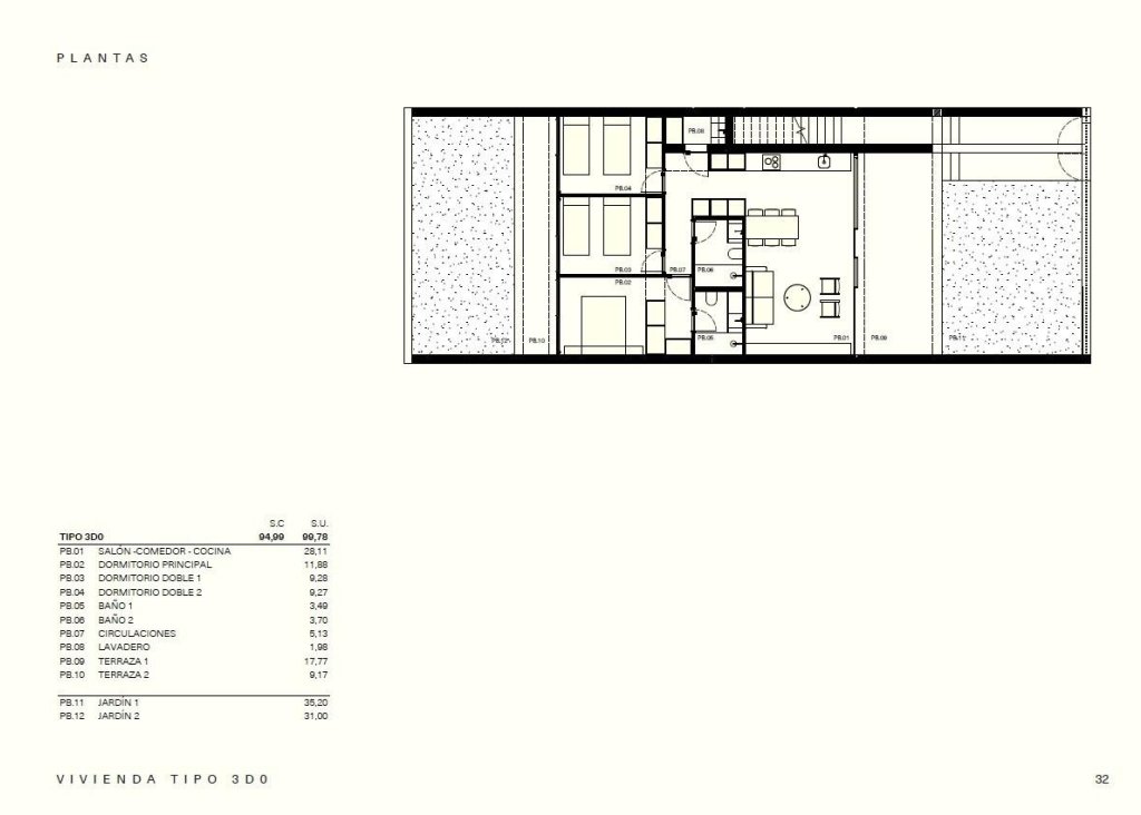
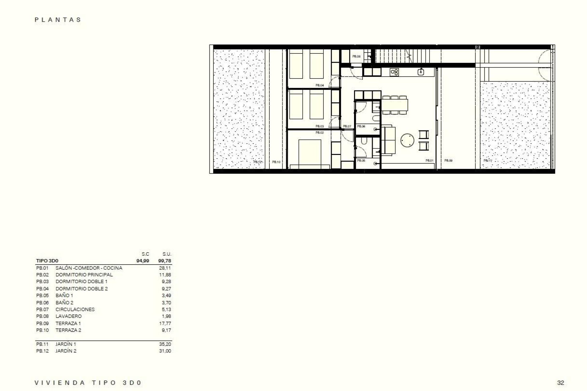
  • Meters 99m2
  • Plot 76m2
  • Bedrooms 3
  • Pool Private
  • Energy Rating Energy Rating B
Bedrooms: 3
Bathrooms: 2
Built: 99m2
Plot: 76m2
Pool: Private
Useable Build Space: 94 Msq.
Storage / Trastero
Garden
Communal Pool
Gated
Number of Parking Spaces: 1
Near Schools
Near Commercial Center
Location: Coastal, Urbanisation
Air Conditioning: Pre-Installed
Near Golf / Golf Resort Property
Double Bedrooms: 3
Terrace: 27 Msq.
Parking - Space
Beach: 3500 Meters

Description

Map

Contact us

Data Controller: CONNECT CONVEYANCING S.L., Purpose of Processing: Management and control of the services offered through the Real Estate Services website, Sending information via newsletter and others, Legal Basis: By consent, Recipients: Data will not be shared, except for accounting purposes, Rights of Interested Parties: Access, rectify, and delete data, request its portability, object to processing, and request its limitation, Source of Data: The Data Subject, Additional Information: You can consult additional and detailed information on data protection Here.

Handpicked properties Similar Properties

www.currencies.co.uk – Great rates of foreign exchange
WhatsApp Chat with us!